联系我们CONTACT US
地址:海南省海口市玉沙路58号
手机:13988889999
电话:0898-88889999
邮箱:admin@eyoucms.com
查看更多
R最新动态RECENT NEWS
你的位置: 首页 > 最新动态

巴比伦艺术花园-最新动态-实景图-精装修-特价房

发布时间:2025-09-01 14:14:22  点击量:

  教育资源:曲江二小,曲江一中,康桥国际中学,曲江第一幼儿园,理工大,交通大学

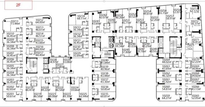
  曲江巴比伦艺术花园目前在售产品面积从33到78㎡,一室两室都有,装修交付,可满足不同面积需求的客户。

  而曲江巴比伦艺术花园36m²的大开间,这种类型的户型在项目一层中占比较高,33-65m²的都有,分布于东西南北四个朝向,户型格局上略有差距,只是开间和进深尺寸有所不同。

  卖点:不限购,可落户,玻璃幕墙,阶梯式花园,一层商业综合体,自带健身房阅读区。

【返回列表页】

顶部

地址:海南省海口市玉沙路58号  电话:0898-88889999 手机:13988889999
 ICP备案编:琼ICP备88889999号